Gliwice

Mieszkanie na sprzedaż

Opis nieruchomości

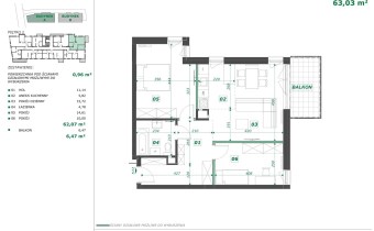
Oferujemy Państwu do sprzedaży bezpieczny/bez gazu/ lokal mieszkalny trzypokojowy z balkonem usytuowany na drugim piętrze rzypiętrowego budynku z windą w Gliwicach.Rok budowy 2025,ogrzewanie  miejskie,woda ciepła miejska,niskie koszty eksploatacji.Dostępne są dodatkowo płatne miejsca w hali garażowej pod budynkiem,oraz komórki lokatorskie.Mieszkania zostały przystosowane do montażu klimatyzacji.Doskonała lokalizacja/5 minut od gliwickiego rynku/stwarza komfortowe możliwości funkcjonowania dla tych wszystkich,którzy cenią sobie bliskość,szkoły,przedszkoli,sklepów,licznych obiektów sportowych,parków,Politechniki Śląskiej,hali sportowej  PreZero Arena,a także swobodnej komunikacji w obrębie całej aglomeracji Śląska,w bliskiej odległości DK902 oraz autostrady A-1 i A-4.Mieszkanie w stanie deweloperskim,do indywidualnego wykończenia.Dostępne są także mieszkania 3 i 4 pokojowe.Zapewniamy zniżki na zakup materiałów wykończeniowych w wiodących sklepach budowlanych.Bezpieczeństwo transakcji gwarantuje licencjonowany pośrednik w obrocie nieruchomościami:Jerzy Piotrowski,nr licencji zawodowej Polskiej Federacji Rynku Nieruchomości nr: 25088.Zapraszamy na prezentację.    

Nota prawna

Opis oferty zawarty na stronie internetowej sporządzany jest na podstawie oględzin nieruchomości oraz informacji uzyskanych od właściciela, może podlegać aktualizacji i nie stanowi oferty określonej w art. 66 i następnych K.C.

Szczegóły oferty

Symbol oferty NXH-MS-5797
Powierzchnia 62,07 m²
Powierzchnia użytkowa 62,07 m²
Liczba pokoi 3
Piętro 2
Rodzaj budynku nowe budownictwo
Technologia budowlana ceramiczny porotherm
Standard
Liczba pięter w budynku 3
Stan lokalu Do wykończenia
Okna nowe PCV
Instalacje nowe
Balkon jest
Liczba balkonów 1
Rok budowy 2025
Parking strzeżony (odległość w metrach) 400 m
Widok panorama miasta
Gaz brak
Woda ciepła - miejska
Dojazd asfalt
Otoczenie zabudowa wielorodzinna
Ogrzewanie miejskie
Odległość do komunikacji publicznej [m] 100 m
Odl. do sklepu [m] 100 m
Odl. do szkoły [m] 400 m
Winda tak
Liczba wind 1
Przystosowania dla niepełnosprawnych tak

Kalkulator kredytowy

PLN
%
Wysokość raty

Kalkulator kosztów

PLN
PLN
PLN
PLN
PLN
PLN
%
PLN
Podatek od czynności cywilno-prawnych
Taksa notarialna (opłata notarialna)
VAT od taksy notarialnej (opłaty notarialnej)
Wniosek do WKW
VAT od wniosku do WKW
Prowizja agencji nieruchomości
VAT od prowizji agencji nieruchomości
Wypisy aktu notarialnego - około
RAZEM (cena + opłaty)

Podobne oferty

mieszkanie na sprzedaż - Gliwice, Centrum

mieszkanie na sprzedaż

Gliwice, Centrum
2 pokoje 63,22 m2 6 785,83 zł/m2
mieszkanie na sprzedaż - Gliwice

mieszkanie na sprzedaż

Gliwice
3 pokoje 58,16 m2 12 500,00 zł/m2
mieszkanie na sprzedaż - Gliwice

mieszkanie na sprzedaż

Gliwice
3 pokoje 55,13 m2 12 500,00 zł/m2
mieszkanie na sprzedaż - Gliwice

mieszkanie na sprzedaż

Gliwice
2 pokoje 74,18 m2 5 958,48 zł/m2

Napisz do nas

Proszę wypełnić to pole
Proszę wypełnić to pole
Proszę wypełnić to pole
Proszę wypełnić to pole
Trwa wysyłanie...

Ta strona wykorzystuje pliki cookies w celach statystycznych oraz w celu dostosowania naszych serwisów do indywidualnych potrzeb klientów. Zmiany ustawień dotyczących plików cookie można dokonać w dowolnej chwili modyfikując ustawienia przeglądarki. Korzystanie z tej strony bez zmian ustawień dotyczących cookies oznacza, że będą one zapisane w pamięci urządzenia.

rozumiem