Gliwice

Mieszkanie na sprzedaż

Opis nieruchomości

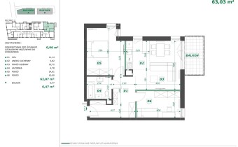
Oferujemy Państwu do sprzedaży bezpieczny /bez gazu/ lokal mieszkalny trzypokojowy z balkonem usytuowany na drugim piętrze trzypiętrowego budynku z windą w Gliwicach. Rok budowy 2025, ogrzewanie  miejskie, woda ciepła miejska, niskie koszty eksploatacji. Dostępne są dodatkowo płatne miejsca w hali garażowej pod budynkiem oraz komórki lokatorskie. Mieszkania zostały przystosowane do montażu klimatyzacji. Doskonała lokalizacja /5 minut od gliwickiego rynku/ stwarza komfortowe możliwości funkcjonowania dla tych wszystkich, którzy cenią sobie bliskość szkół, przedszkoli, sklepów, licznych obiektów sportowych, parków, Politechniki Śląskiej, hali sportowej  PreZero Arena, a także swobodnej komunikacji w obrębie całej aglomeracji Śląska. W bliskiej odległości DK902 oraz autostrady A-1 i A-4. Mieszkanie w stanie deweloperskim do indywidualnego wykończenia. Dostępne są także mieszkania 3 i 4 pokojowe. Zapewniamy zniżki na zakup materiałów wykończeniowych w wiodących sklepach budowlanych. Zapraszamy na prezentację.
Zapewniamy kompleksową obsługę prawną, notarialną i finansową. Bezpieczeństwo transakcji gwarantuje licencjonowany pośrednik w obrocie nieruchomościami: Jerzy Piotrowski, nr licencji zawodowej Polskiej Federacji Rynku Nieruchomości nr:25088.     

Nota prawna

Opis oferty zawarty na stronie internetowej sporządzany jest na podstawie oględzin nieruchomości oraz informacji uzyskanych od właściciela, może podlegać aktualizacji i nie stanowi oferty określonej w art. 66 i następnych K.C.

Szczegóły oferty

Symbol oferty NXH-MS-6028
Powierzchnia 62,07 m²
Powierzchnia użytkowa 62,07 m²
Liczba pokoi 3
Piętro 2
Rodzaj budynku nowe budownictwo
Technologia budowlana ceramiczny porotherm
Standard
Liczba pięter w budynku 3
Stan lokalu Do wykończenia
Okna nowe PCV
Instalacje nowe
Balkon jest
Liczba balkonów 1
Rok budowy 2025
Parking strzeżony (odległość w metrach) 400 m
Widok panorama miasta
Gaz brak
Woda ciepła - miejska
Dojazd asfalt
Otoczenie zabudowa wielorodzinna
Ogrzewanie miejskie
Odległość do komunikacji publicznej [m] 100 m
Odl. do sklepu [m] 100 m
Odl. do szkoły [m] 400 m
Winda tak
Liczba wind 1
Przystosowania dla niepełnosprawnych tak

Kalkulator kredytowy

PLN
%
Wysokość raty

Kalkulator kosztów

PLN
PLN
PLN
PLN
PLN
PLN
%
PLN
Podatek od czynności cywilno-prawnych
Taksa notarialna (opłata notarialna)
VAT od taksy notarialnej (opłaty notarialnej)
Wniosek do WKW
VAT od wniosku do WKW
Prowizja agencji nieruchomości
VAT od prowizji agencji nieruchomości
Wypisy aktu notarialnego - około
RAZEM (cena + opłaty)

Podobne oferty

mieszkanie na sprzedaż - Gliwice, Centrum

mieszkanie na sprzedaż

Gliwice, Centrum
2 pokoje 63,22 m2 6 785,83 zÅ‚/m2
mieszkanie na sprzedaż - Gliwice

mieszkanie na sprzedaż

Gliwice
3 pokoje 58,16 m2 12 500,00 zÅ‚/m2
mieszkanie na sprzedaż - Gliwice

mieszkanie na sprzedaż

Gliwice
3 pokoje 55,13 m2 12 500,00 zÅ‚/m2
mieszkanie na sprzedaż - Gliwice

mieszkanie na sprzedaż

Gliwice
2 pokoje 74,18 m2 5 958,48 zÅ‚/m2

Napisz do nas

Proszę wypełnić to pole
Proszę wypełnić to pole
Proszę wypełnić to pole
Proszę wypełnić to pole
Trwa wysyłanie...

Ta strona wykorzystuje pliki cookies w celach statystycznych oraz w celu dostosowania naszych serwisów do indywidualnych potrzeb klientów. Zmiany ustawień dotyczących plików cookie można dokonać w dowolnej chwili modyfikując ustawienia przeglądarki. Korzystanie z tej strony bez zmian ustawień dotyczących cookies oznacza, że będą one zapisane w pamięci urządzenia.

rozumiem