Gliwice

Obiekt na sprzedaż

Opis nieruchomości

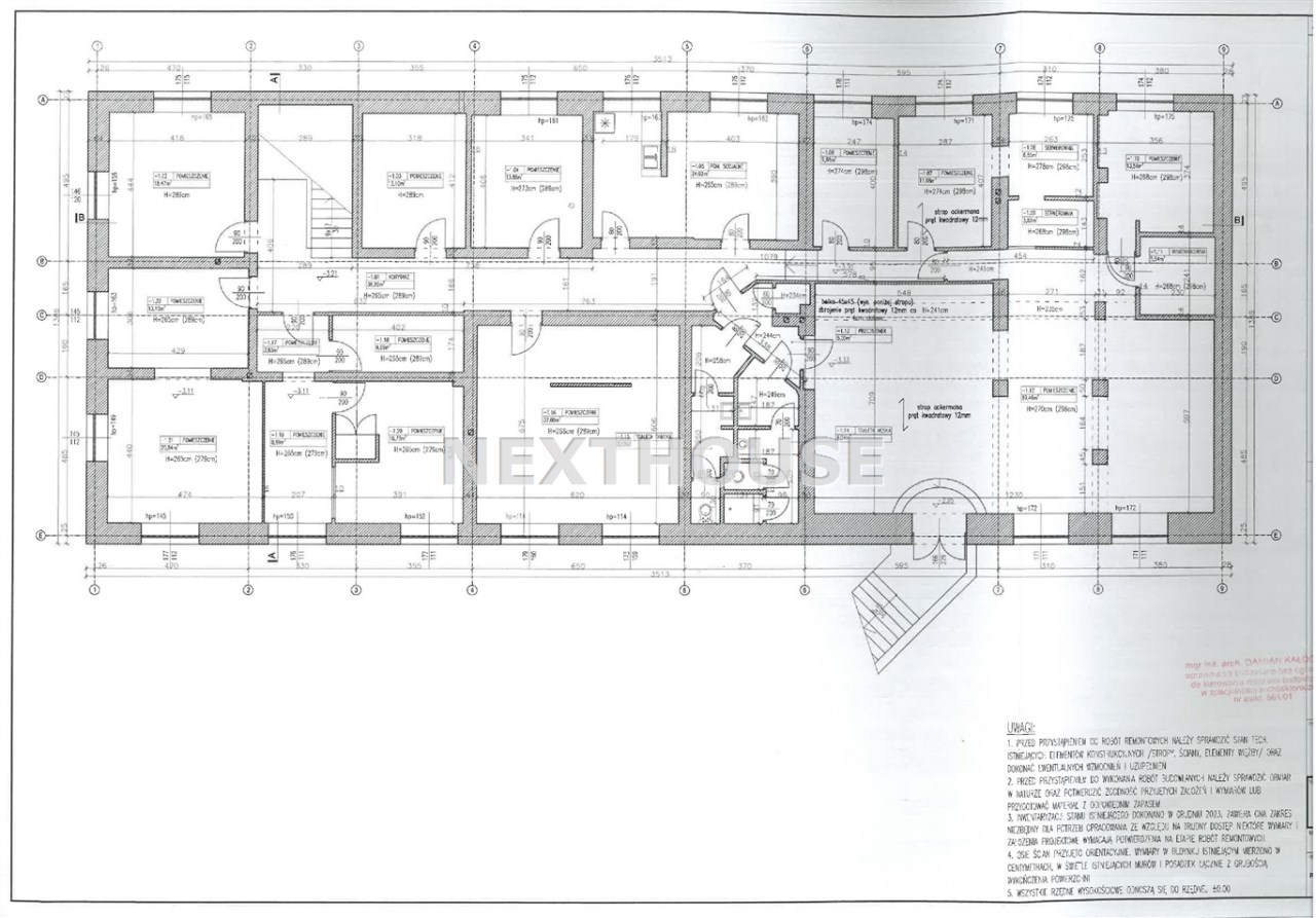
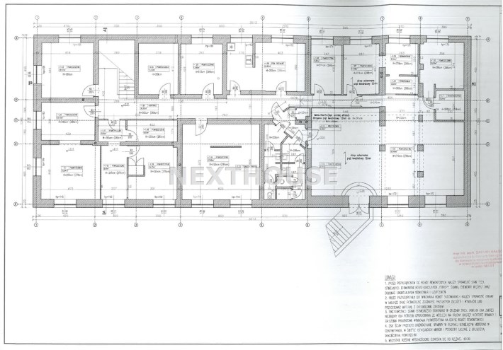
Oferujemy Państwu do sprzedaży nowoczesny i funkcjonalny obiekt dwukondygnacyjny, handlowo-biurowo-usługowy z miejskim ogrzewaniem i ciepłą wodą na działce 1658 m2, w Gliwicach, bezpośrednio przy węźle autostrad  A-4, A1 i DK902. Nieruchomość po ekspertyzie budowlanej z możliwością rozbudowy o kolejne dwie kondygnacje.Parter:12  pomieszczeń biurowych o wysokim standardzie, klimatyzowanych z możliwością ich dowolnej aranżacji, pomieszczenie socjalne, 2 WC oraz hall o łącznej powierzchni 410,30 m2. Przyziemie:14 pomieszczeń, pomieszczenie socjalne, 2 serwerownie, wymiennikownia, 2 WC oraz korytarz o łącznej powierzchni 377,49 m2. Istniej możliwość dokupienia działki przyległej o pow. ok 1800 m2. Budynek wykonano w technologii tradycyjnej z cegły, docieplono styropianem, dwa niezależne wejścia, alarm, klimatyzacja w części biurowej, własne miejsca parkingowe. Zapraszamy na prezentację.
Bezpieczeństwo transakcji gwarantuje licencjonowany pośrednik w obrocie nieruchomościami: Jerzy Piotrowski, nr licencji zawodowej Polskiej Federacji Rynku Nieruchomości nr:25088.

Nota prawna

Opis oferty zawarty na stronie internetowej sporządzany jest na podstawie oględzin nieruchomości oraz informacji uzyskanych od właściciela, może podlegać aktualizacji i nie stanowi oferty określonej w art. 66 i następnych K.C.

Szczegóły oferty

Symbol oferty NXH-BS-5806
Powierzchnia 787,79 m²
Powierzchnia działki 1 658 m²
Rodzaj obiektu biurowiec
Standard
Stan prawny Własność
Gaz jest
Woda ciepła - miejska
Dojazd asfalt
Otoczenie działki zabudowane
Ogrzewanie miejskie
Odległość do komunikacji publicznej [m] 400 m
Własny parking tak
Wejście od ulicy
Prąd jest
Kanalizacja miejska

Pomieszczenia

Liczba pomieszczeń biurowych 12
Liczba pomieszczeń socjalnych 2
Powierzchnia pomieszczeń socjalnych 31,2200 m2
Liczba pomieszczeń sanitarnych 2
Powierzchnia pomieszczeń sanitarnych 28,7600 m2

Kalkulator kredytowy

PLN
%
Wysokość raty

Kalkulator kosztów

PLN
PLN
PLN
PLN
PLN
PLN
%
PLN
Podatek od czynności cywilno-prawnych
Taksa notarialna (opłata notarialna)
VAT od taksy notarialnej (opłaty notarialnej)
Wniosek do WKW
VAT od wniosku do WKW
Prowizja agencji nieruchomości
VAT od prowizji agencji nieruchomości
Wypisy aktu notarialnego - około
RAZEM (cena + opłaty)

Podobne oferty

obiekt na sprzedaż - Gliwice

obiekt na sprzedaż

Gliwice
  491,00 m2 7 107,94 zł/m2
nowa oferta
obiekt na sprzedaż - Gliwice, Żerniki

obiekt na sprzedaż

Gliwice, Żerniki
  1 203,00 m2 2 991,69 zł/m2

Napisz do nas

Proszę wypełnić to pole
Proszę wypełnić to pole
Proszę wypełnić to pole
Proszę wypełnić to pole
Trwa wysyłanie...

Ta strona wykorzystuje pliki cookies w celach statystycznych oraz w celu dostosowania naszych serwisów do indywidualnych potrzeb klientów. Zmiany ustawień dotyczących plików cookie można dokonać w dowolnej chwili modyfikując ustawienia przeglądarki. Korzystanie z tej strony bez zmian ustawień dotyczących cookies oznacza, że będą one zapisane w pamięci urządzenia.

rozumiem